- Woonoppervlakte
- Circa 140 m²
- Perceeloppervlakte
- Circa 214 m²
- Bouwjaar
- Gebouwd in 2016
- Aantal kamers
- 6 kamers (5 slaapkamers)
INSTAPKLAAR, LUXE EN ROYAAL WONEN IN EEN MODERNE AAN DE ACHTERZIJDE UITGEBOUWDE HOEKWONING!
Aan de Zeebiesstraat 6 in Heerhugowaard vind je deze uitgebouwde en tot in detail afgewerkte HOEKWONING met maar liefst vijf slaapkamers, twee dakkapellen, circa 140 m² woonoppervlakte, een zonnige tuin op het ZUIDEN en een hoogwaardig afwerkingsniveau is dit een woning waar je zó in kunt trekken.
De VLOERVERWARMING, 18 zonnepanelen, luxe keuken en moderne badkamer zorgen voor optimaal wooncomfort, terwijl de rustige en kindvriendelijke ligging het plaatje compleet maakt.
Instapklaar, luxe afgewerkt en verrassend ruim, deze uitgebouwde HOEKWONING aan de Zeebiesstraat 6 heeft echt alles in huis! Hier woon je comfortabel, duurzaam én stijlvol. De combinatie van ruimte, luxe en een rustige ligging maakt dit een ideale gezinswoning.
Nieuwsgierig? Check de EXCLUSIEVE EIGEN WEBSITE VAN DE WONING (Zeebiesstraat6.nl) voor meer informatie over de woning en de omgeving via de site van EV Wonen Makelaardij.
BEZICHTIGING: plan eenvoudig een afspraak via Funda of de website van EV Wonen Makelaardij. We laten deze leuke woning graag aan je zien!
BIJZONDERHEDEN
- Hoekwoning met 5 slaapkamers
- Woonoppervlakte ca. 140 m²
- Uitgebouwd achterzijde met ca. 3,6 meter
- Zonnige tuin op het zuiden (ca. 13 x 8 m)
- Luxe keuken met granieten werkblad en Siemens apparatuur
- Vloerverwarming op begane grond en 1e verdieping
- Energielabel A en 18 zonnepanelen (320wp)
- Twee dakkapellen (kunststof) op de tweede verdieping
- Airconditioning op de tweede verdieping
- Veranda in de achtertuin
- Laadpaal voor de deur
LOCATIE:
Je woont hier in een rustige, autoluwe straat in een kindvriendelijke wijk. In de directe omgeving vind je supermarkten, scholen, speeltuinen en sportfaciliteiten. Ook het stadshart van Heerhugowaard ligt op korte afstand, net als de uitvalswegen richting Alkmaar, Hoorn en Amsterdam. Een fijne plek waar rust en bereikbaarheid perfect samenkomen.
INDELING:
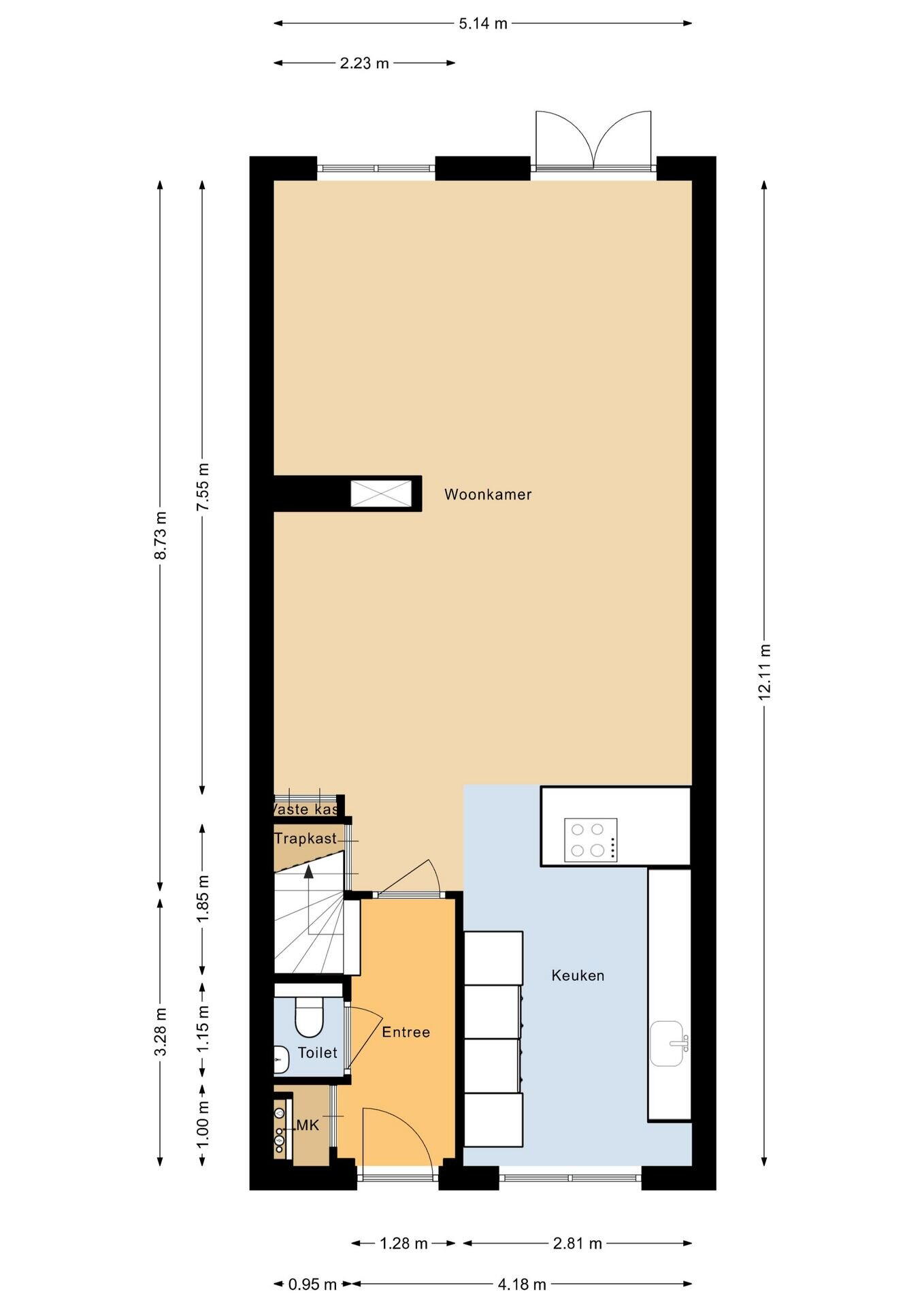
BEGANE GROND
Via de entree kom je in de hal met meterkast en trapopgang. De woonkamer is door de uitbouw heerlijk ruim en licht, met openslaande deuren naar de tuin. De ruimte is strak afgewerkt met glad gestucte wanden en plafond, een laminaatvloer met vloerverwarming en een stijlvolle cinewall met gashaard en spotverlichting.
De open keuken (2016) is luxe uitgevoerd en voorzien van een granieten werkblad, inductiekookplaat, combi-oven met stoomfunctie, combimagnetron, grote koelkast, vriezer met 4 laden, vaatwasser en afzuigkap. De kleine bar maakt het een gezellige plek om samen te komen.
EERSTE VERDIEPING
Op de eerste verdieping vind je drie slaapkamers, allemaal netjes afgewerkt met dezelfde laminaatvloer en renovliesbehang. De vloerverwarming is per kamer regelbaar, wat zorgt voor extra comfort. De slaapkamer aan de achterzijde is voorzien van een rolluik.
De badkamer is modern en compleet ingericht met een ligbad, inloopdouche, hangend toilet, wastafelmeubel, vloerverwarming en spotverlichting.
TWEEDE VERDIEPING
De tweede verdieping beschikt over twee ruime slaapkamers. Aan de voor- en achterzijde beschikt de woning over twee grote kunststof dakkapellen met draai/kiepramen. De achterste dakkapel op de zuidkant heeft ook rolluiken. Hierdoor zijn er twee volwaardige en lichte kamers ontstaan. Beide kamers zijn voorzien van airconditioning, de achterste kamer beschikt over infra rood vloerverwarming en de voorste kamer heeft een radiator.
Daarnaast is er een aparte bergkast met de aansluitingen voor wasmachine en droger, de cv-installatie, mechanische ventilatie en de omvormer voor de 18 zonnepanelen. Extra bergruimte vind je op de vliering, die over de volledige breedte van de woning loopt en bereikbaar is via een vlizotrap.
TUIN
De achtertuin ligt gunstig op het zuiden en is fraai aangelegd met onder andere kunstgras, cortenstaal en een veranda. Hier geniet je volop van het buitenleven, met voldoende ruimte om te ontspannen of gezellig te zitten.
PARKEREN
Parkeren doe je in de directe omgeving, waar voldoende openbare parkeergelegenheid aanwezig is. Daarnaast is er een laadpaal voor de deur.
Zeebiesstraat 6 is een luxe, ruime en instapklare woning waar werkelijk aan alles is gedacht. Een ideale plek voor wie comfortabel en zorgeloos wil wonen in een moderne omgeving.
Aanvaarding: in overleg. Lees de volledige omschrijving
Overdracht
- Vraagprijs
- € 595.000 k.k.
- Status
- Beschikbaar
- Aanvaarding
- In overleg
Bouw
- Object type
- Eengezinswoning, hoekwoning
- Soort bouw
- Bestaande bouw
- Bouwjaar
- 2016
- Soort dak
- Zadeldak bedekt met pannen
Oppervlakte en inhoud
- Woonoppervlakte
- 140 m²
- Perceeloppervlakte
- 214 m²
- Inhoud
- 499 m³
- Externe bergruimte
- 6 m²
Indeling
- Aantal kamers
- 6 kamers (5 slaapkamers)
- Aantal badkamers
- 1 badkamer en 1 apart toilet
- Badkamervoorzieningen
- Douche, ligbad, toilet, en wastafelmeubel
- Aantal woonlagen
- 3 woonlagen en een vliering
- Voorzieningen
- Airconditioning, buitenzonwering, glasvezelkabel, mechanische ventilatie, rolluiken, TV kabel, en zonnepanelen
Energie
- Energielabel
- A
- Isolatie
- Dakisolatie, dubbel glas, muurisolatie, vloerisolatie en volledig geïsoleerd
- Verwarming
- Cv-ketel en gedeeltelijke vloerverwarming
- Warm water
- Cv-ketel
- Cv ketel
- Intergas ( combiketel uit 2016, eigendom)
Buitenruimte
- Ligging
- Aan rustige weg en in woonwijk
- Tuin
- Achtertuin, voortuin en zijtuin
- Afmetingen achtertuin
- 98 m² (12,40 meter diep en 7,90 meter breed)
- ligging tuin
- Gelegen op het zuiden bereikbaar via achterom
Bergruimte
- Schuur / berging
- Vrijstaande houten berging
- Voorzieningen
- Elektra
Parkeergelegenheid
- Soort parkeergelegenheid
- Openbaar parkeren
Energieverbruik in Heerhugowaard
Energielabel deze woning
Energielabel A
Publicatie energielabel:
Stroomverbruik per jaar
(Gemiddelde hoekwoning in Heerhugowaard)
Gasverbruik per jaar
(Gemiddelde hoekwoning in Heerhugowaard)
* Cijfers zijn afkomstig van het CBS en bedoeld als indicatie en kunnen verschillen voor deze woning
Indicatie hypotheeklasten
Eigen inleg:
Spaargeld / overwaarde
Rente:
Laagste 10-jaars rente
Laagste 10-jaars rente
2,78% - Centraal Beheer - NHG
3,04% - Centraal Beheer - 80%
Laagste 20-jaars rente
3,29% - Centraal Beheer - NHG
3,52% - Centraal Beheer - 80%
Laagste 30-jaars rente
3,41% - Centraal Beheer - NHG
3,7% - Argenta - 80%
Hypotheek:
Bruto maandlasten: € 0 p/m
Netto maandlasten: € 0 p/m
Hoe berekenen we dit?
Het rentepercentage is gebaseerd op de laagste 10 jaars vaste rente voor één hypotheekdeel. De vermelde rente (3.04% zonder NHG) is gecontroleerd op 17-04-2026. Deze berekening is gebaseerd op een annuïteitenhypotheek die volledig wordt afgelost, waarbij de maandlasten gedurende de gehele looptijd gelijk blijven. De werkelijke rente en netto maandlasten kunnen variëren, afhankelijk van uw persoonlijke situatie en de hypotheekverstrekker. Raadpleeg een financieel adviseur voor een nauwkeurige berekening en advies. Aan deze berekening kunnen geen rechten worden ontleend; het dient enkel als indicatie.
Documentatie
Kadastrale kaart
Leefomgeving
Plattegronden PDF
WOZ waarderapport
BAG uittreksel
Brochure
Bezoek onze website
Bezichtiging
Bod uitbrengen
Waardebepaling
Zoekopdracht
Alles downloaden
Zonnegrenzen bekijken
Inwoners in Heerhugowaard
Cijfers voor postcodegebied 1706
- Totaal aantal inwoners
- 59045 inwoners
- Mannen
- 51%
- Vrouwen
- 49%
Inwoners in Heerhugowaard
Cijfers voor postcodegebied 1706
- tot 15 jaar
- 17%
- 15 tot 25 jaar
- 13%
- 25 tot 35 jaar
- 25%
- 45 tot 65 jaar
- 27%
- 65 en ouder
- 18%
Huishoudens in Heerhugowaard
Cijfers voor postcodegebied 1706
- Eenpersoons zonder kinderen
- 13%
- Meerpersoons zonder kinderen
- 28%
- Huishoudens zonder kinderen
- 41%
Huishoudens in Heerhugowaard
Cijfers voor postcodegebied 1706
- Huishoudens met één kind
- 9%
- Huishoudens met meerdere kinderen
- 50%
- Huishoudens met kinderen
- 59%
Woningen in Heerhugowaard
Cijfers voor postcodegebied 1706
- Woningen voor 1945
- 1%
- Woningen tussen 1945 en 1965
- 1%
- Woningen tussen 1965 en 1975
- 1%
- Woningen tussen 1975 en 1985
- 1%
- Woningen tussen 1985 en 1995
- 1%
Woningen in Heerhugowaard
Cijfers voor postcodegebied 1706
- Woningen tussen 1995 en 2005
- 1%
- Woningen tussen 2005 en 2015
- 20%
- Woningen na 2015
- 80%
- Huurwoningen
- 20%
- Koopwoningen
- 80%
Overige in Heerhugowaard
Cijfers voor postcodegebied 1706
- Gemiddelde WOZ waarde
- € 318.000,-
- Personen onder de 65 met uitkering
- 5%
Overige in Heerhugowaard
Cijfers voor postcodegebied 1706
- Adressen per km²
- 649
- Stedelijkheid (schaal 1 op 5)
- 40%
Korte feiten over Heerhugowaard
Heerhugowaard is een plaats in de gemeente Dijk en Waard, in de regio West-Friesland in de Nederlandse provincie Noord-Holland. Heerhugowaard hoort historisch gezien niet bij Kennemerland maar valt wel onder de gemeentelijke samenwerkingsregio Kennemerland via Noord-Kennemerland.
Wie is EV Wonen Makelaardij?
Het verlaten van je oude woning of het ontdekken van je nieuwe droomhuis is een ongelooflijk opwindend proces voor de meeste van onze klanten. Er zijn zoveel besluiten te nemen en talloze factoren die invloed hebben op het behalen van het best mogelijke resultaat voor jou. Bovendien is de vraag naar woningen sterk gestegen en hebben de prijzen recordhoogtes bereikt.
In deze dynamische en vaak onvoorspelbare markt zijn wij de toonaangevende verkoopmakelaar in de regio, goed geïnformeerd over de lokale huizenmarkt en de verkoopmogelijkheden van jouw woning.
We hebben voor veel klanten uitstekende verkoop- of aankoopresultaten behaald. Wij volgen geen vaste methoden, omdat we geloven dat elke woning en verkoper uniek is. Bij ons kun je rekenen op een persoonlijke benadering. Ons succesgeheim is dat we alledaagse dingen buitengewoon goed uitvoeren.
Een huis met succes verkopen is geen eenvoudige taak. EV Wonen Makelaardij biedt:
– een solide verkoopstrategie;
– een eersteklas presentatie met altijd een toppositie op Funda;
– een gedreven en gecertificeerde Register Makelaar/Taxateur;
– proactief gebruik van sociale media;
– en een flinke portie lokale marktkennis.
Onze aanpak heeft de afgelopen jaren geleid tot een zeer hoge Funda klantbeoordeling van 9,5! Dit betekent dat klanten met een goed verkoopproces uitstekende verkoopresultaten hebben behaald.
We besteden veel aandacht aan jouw persoonlijke situatie en de specifieke kenmerken van jouw woning. Dit, in combinatie met een goede communicatie, garandeert een succesvol verkoop- of aankooptraject. Benieuwd wat we voor jou kunnen doen? We komen graag vrijblijvend langs voor advies op maat.
Naast Heerhugowaard zijn we ook actief als makelaar in Alkmaar, Oterleek, Langedijk, Hensbroek, Obdam en omgeving.
Wij kunnen je op een unieke en persoonlijke manier volledig ontzorgen als verkoopmakelaar of aankoopmakelaar bij de verkoop of aankoop van jouw woning.
Nieuwste reviews
-
Spaarne 34
We hebben de verkoop van ons huis als zeer prettig ervaren! Er is veel moeite en tijd in gestoken waar we erg dankbaar voor zijn.
-
Paltrokmolen 14
Wij hadden al gehoord van EV Wonen via vrienden en kennissen en door de positieve berichten hebben we voor EV Wonen gekozen.Vriendelijk, rus...
-
Tuin van Freyr 57
Wij kijken met veel tevredenheid terug op de diensten van Edwin. Het persoonlijke contact voelde oprecht en betrokken, terwijl er tegelijker...